
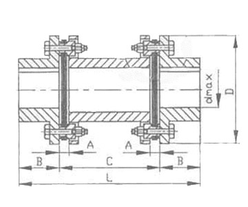
■標記示例
內徑d=300mm,外徑D=375mm的Z3型脹緊聯結套:
脹套Z8-300×375 JB/T7934-1999
■Z8型脹緊聯結套鎖緊聯結盤的基本尺寸 (按JB/T 7934-1999生產)
| 基 本 尺 寸 | 內六角螺釘 | 額定負荷 | 脹套與軸 結合面上 的壓力 Pf N/mm2 | 脹套與輪 轂結合面上的壓力 Pf′ N/mm 2 | 螺釘的擰 緊 力 矩 MA N·m | 重 量 kg | |||||||
| d | D | L1 | L2 | L3 | L4 | d 1 | n | 軸向力F1 KN | 轉矩 M1 KN·m | ||||
| mm | |||||||||||||
| 20 | 47 | 17 | 22 | 28 | 34 | M6×20 | 5 | 30 | 0.29 | 220 | 95 | 17 | 0.25 |
| 22 | 47 | 17 | 22 | 28 | 34 | M6×20 | 5 | 30 | 0.32 | 200 | 95 | 0.25 | |
| 24 | 50 | 17 | 22 | 28 | 34 | M6×20 | 5 | 30 | 0.37 | 200 | 95 | 0.27 | |
| 25 | 50 | 17 | 22 | 28 | 34 | M6×20 | 6 | 36 | 0.45 | 215 | 110 | 0.27 | |
| 28 | 55 | 17 | 22 | 28 | 34 | M6×20 | 6 | 36 | 0.50 | 200 | 100 | 0.32 | |
| 30 | 55 | 17 | 22 | 28 | 34 | M6×20 | 6 | 36 | 0.54 | 190 | 100 | 0.35 | |
| 32 | 60 | 17 | 22 | 28 | 34 | M6×20 | 8 | 48 | 0.77 | 215 | 115 | 0.37 | |
| 35 | 60 | 17 | 22 | 28 | 34 | M6×20 | 8 | 48 | 0.84 | 190 | 110 | 0.34 | |
| 38 | 65 | 17 | 22 | 28 | 34 | M6×20 | 8 | 48 | 0.91 | 195 | 115 | 0.40 | |
| 40 | 65 | 17 | 22 | 28 | 34 | M6×20 | 8 | 48 | 0.96 | 190 | 105 | 0.38 | |
| 45 | 75 | 20 | 25 | 33 | 41 | M8×25 | 7 | 77 | 1.75 | 230 | 135 | 41 | 0.63 |
| 50 | 80 | 20 | 25 | 33 | 41 | M8×25 | 7 | 77 | 1.93 | 210 | 130 | 0.68 | |
| 55 | 85 | 20 | 25 | 33 | 41 | M8×25 | 8 | 88 | 2.45 | 215 | 135 | 0.73 | |
| 60 | 90 | 20 | 25 | 33 | 41 | M8×25 | 8 | 88 | 2.70 | 190 | 125 | 0.78 | |
| 63 | 95 | 20 | 25 | 33 | 41 | M8×25 | 9 | 100 | 3.18 | 205 | 140 | 0.89 | |
| 65 | 95 | 20 | 25 | 28 | 41 | M8×25 | 9 | 100 | 3.25 | 200 | 135 | 0.83 | |
| 70 | 110 | 24 | 30 | 40 | 50 | M10×30 | 8 | 141 | 5.00 | 220 | 140 | 83 | 1.33 |
| 75 | 115 | 24 | 30 | 40 | 50 | M10×30 | 8 | 141 | 5.25 | 200 | 130 | 1.40 | |
| 80 | 120 | 24 | 30 | 40 | 50 | M10×30 | 8 | 141 | 5.60 | 190 | 125 | 1.48 | |
| 85 | 125 | 24 | 30 | 40 | 50 | M10×30 | 9 | 159 | 6.75 | 200 | 135 | 1.55 | |
| 90 | 130 | 24 | 30 | 40 | 50 | M10×30 | 9 | 159 | 7.10 | 190 | 130 | 1.63 | |
| 95 | 135 | 24 | 30 | 40 | 50 | M10×30 | 10 | 176 | 8.35 | 200 | 140 | 1.70 | |
| 100 | 145 | 26 | 32 | 44 | 56 | M12×30 | 8 | 205 | 10.30 | 210 | 145 | 145 | 2.60 |
| 110 | 155 | 26 | 32 | 44 | 56 | M12×30 | 8 | 205 | 11.25 | 190 | 135 | 2.80 | |
| 120 | 165 | 26 | 32 | 44 | 56 | M12×30 | 9 | 231 | 13.9 | 210 | 145 | 3.00 | |
| 130 | 180 | 34 | 40 | 52 | 64 | M12×30 | 12 | 308 | 20.00 | 190 | 140 | 4.60 | |
| 140 | 190 | 34 | 40 | 54 | 68 | M14×40 | 9 | 317 | 22.25 | 180 | 130 | 230 | 4.90 |
| 150 | 200 | 34 | 40 | 54 | 68 | M14×40 | 10 | 352 | 26.3 | 190 | 140 | 5.20 | |
| 160 | 210 | 34 | 40 | 54 | 68 | M14×40 | 11 | 287 | 31.0 | 190 | 145 | 5.50 | |
| 170 | 225 | 44 | 40 | 64 | 78 | M14×40 | 12 | 422 | 35.9 | 150 | 115 | 7.75 | |
| 180 | 235 | 44 | 50 | 64 | 78 | M14×40 | 12 | 422 | 38.0 | 145 | 110 | 8.15 | |
| 190 | 250 | 44 | 50 | 64 | 78 | M14×40 | 15 | 528 | 50.1 | 170 | 130 | 9.50 | |
| 200 | 260 | 44 | 50 | 64 | 78 | M14×40 | 15 | 528 | 52.8 | 160 | 125 | 9.90 | |
| 220 | 285 | 50 | 56 | 72 | 88 | M16×40 | 12 | 587 | 64.5 | 145 | 110 | 355 | 13.40 |
| 240 | 305 | 50 | 56 | 72 | 88 | M16×40 | 15 | 734 | 88 | 165 | 130 | 14.30 | |
| 260 | 325 | 50 | 56 | 72 | 88 | M16×40 | 18 | 880 | 114 | 180 | 145 | 15.50 | |
| 280 | 355 | 60 | 66 | 84 | 102 | M18×50 | 16 | 948 | 132 | 150 | 120 | 485 | 22.90 |
| 300 | 375 | 60 | 66 | 84 | 102 | M18×50 | 18 | 1059 | 159 | 160 | 125 | 24.40 | |
| 320 | 405 | 74 | 81 | 101 | 121 | M20×50 | 18 | 1374 | 220 | 150 | 120 | 690 | 36.10 |
| 340 | 425 | 74 | 81 | 101 | 121 | M20×50 | 21 | 1603 | 272.5 | 175 | 135 | 38.40 | |
| 360 | 455 | 86 | 94 | 116 | 138 | M22×60 | 18 | 1710 | 308 | 140 | 110 | 930 | 46.20 |
| 380 | 475 | 86 | 94 | 116 | 138 | M22×60 | 21 | 1995 | 379 | 155 | 125 | 55.00 | |
| 400 | 495 | 86 | 94 | 116 | 138 | M22×60 | 21 | 1995 | 399 | 150 | 120 | 61.00 | |
| 注:Z8型脹緊聯結套螺釘的機械性能等級為12.9級。 | |||||||||||||
Z8型脹緊聯結套
掃描二維碼分享到微信